Quadrilocale in vendita

Cerano, Via Streglia
€ 139.000
4 locali 4 locali
121 Mq 121 Mq
1 bagno 1 bagno

Quadrilocale in vendita

Cerano, Via Streglia

Descrizione annuncio

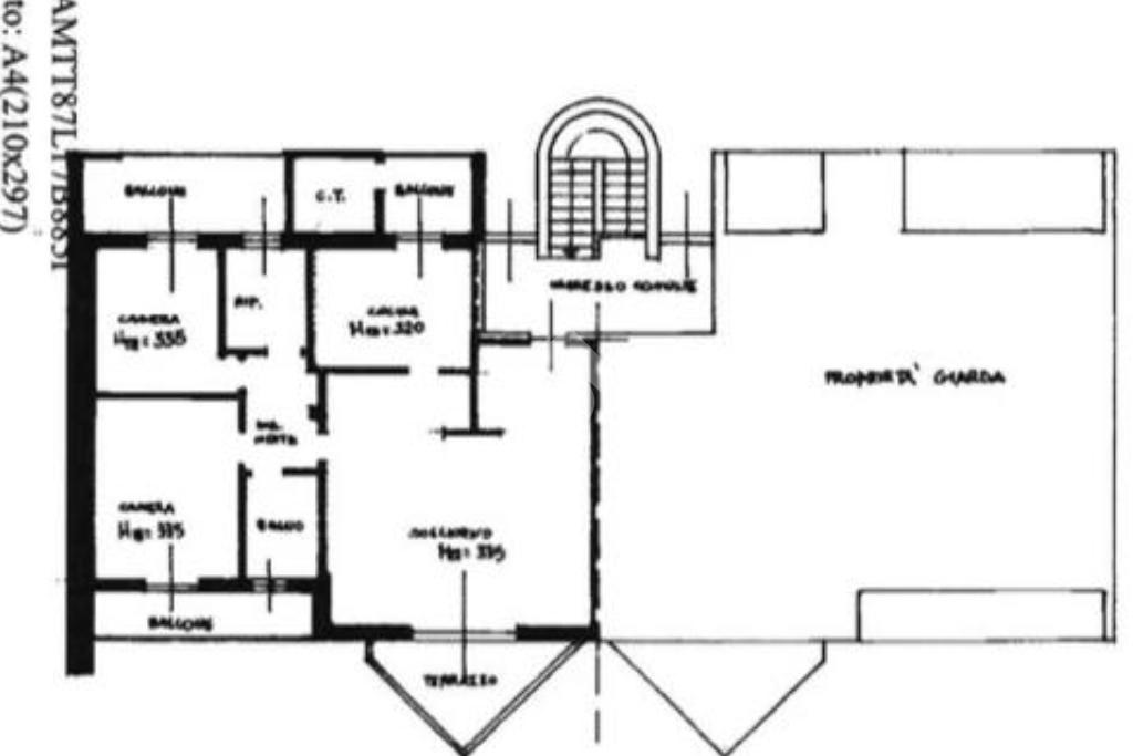
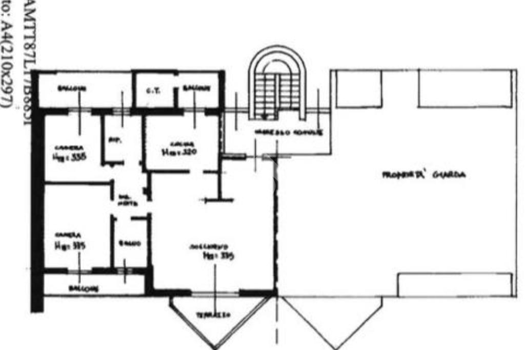
Nel comune di Cerano, proponiamo in vendita un appartamento quadrilocale situato all'ultimo piano di un complesso residenziale tranquillo, che offre spazi ben distribuiti e funzionali. All'interno, troverete una camera matrimoniale con accesso diretto a un balcone privato, una cameretta dotata di terrazzo e uno studio versatile. Il bagno è spazioso e ben rifinito. Il grande salotto, ideale per momenti di relax e convivialità, si apre su un ampio terrazzo, mentre la cucina, anch'essa con terrazzo, è perfetta per chi ama cucinare e pranzare all'aperto. L'appartamento è dotato di aria condizionata per garantire comfort in ogni stagione. Completano la proprietà due posti auto e cantina per offrire comodità e praticità. Un'opportunità ideale per chi cerca un'abitazione spaziosa in un contesto sereno.

Mostra tutto

Nelle vicinanze

Trasporto pubblico Trasporto pubblico
Via Circonvallazione
Via Circonvallazione
250 m
Via Circonvallazione - Via Vigevano (Cerano)
Via Circonvallazione - Via Vigevano (Cerano)
300 m
Ricariche auto elettriche Ricariche auto elettriche
Cerano IV Novembre | EnelX
510 m
Cerano Prati Nuovi | EnelX
570 m
Cerano Bricco | EnelX
640 m
Scuole Scuole
Scuole
540 m
Farmacia Farmacia
Farmacia Boca
240 m
Farmacia Cocconcelli
410 m
Supermercati Supermercati
Coop
620 m
Bar Bar
BarCè
230 m
L'Astro
480 m
Ristoranti Ristoranti
Trattoria dei Pescatori
2,9 Km
Mostra tutto

Caratteristiche

Rif.:
61157215
Piano:
2 di 2 (ultimo Piano)
Box:
1
Posti auto:
2
Balconi:
1
Terrazzi:
3
Mostra tutto
Prezzo Prezzo
€ 139.000
Rata mutuo Rata mutuo
€ 655 / mese
Spese annue Spese annue
€ 1.400
Proponi il tuo prezzoProponi il tuo prezzo

Classe Energetica

Questo immobile è esente da classe energetica
Anno di costruzione:
1992
Riscaldamento:
Autonomo
Tipo impianto:
A radiatori
Tipo alimentazione:
Metano

Ti interessa visionare l'immobile?

Fissa un appuntamento  Fissa un appuntamento

Richiedi informazioni

Clicca su Leggi per aprire l'informativa
* Questi campi sono obbligatori

Calcola il tuo mutuo

Semplice e senza impegno
Anticipo

( % )
Mutuo

( % )

pochi semplici passi

inserisci i tuoi dati
Questionario completato
Grazie per aver richiesto un appuntamento senza impegno con un nostro Consulente del Credito e Assicurativo.

Hai inserito correttamente tutti i dati necessari e a breve riceverai una e-mail con un link da convalidare per inviare i tuoi dati.
Affiliato
Studio Trecate Uno Sas
Via Antonio Gramsci, 38 28069 Trecate (NO)

Il nostro staff


  • Giulia Ibba
    Collaboratrice

  • Iris Palumbo
    Coordinatrice

  • Edoardo Ronza
    Affiliato

  • Flavia Sgotto
    Collaboratrice
Via Antonio Gramsci, 38 28069 Trecate (NO)
Zona: Trecate-Cerano-Borgolavezzaro-Garbagna Novarese-Vespolate-Sozzago-Terdobbiate-Tornaco-Nibbiola
Mostra su mappa
Affiliato
Studio Trecate Uno Sas
Via Antonio Gramsci, 38 28069 Trecate (NO)

2026 Tecnocasa Franchising S.p.A. - P. IVA 08365160152 - Via Monte Bianco 60/A 20089 Rozzano (MI). Ogni agenzia ha un proprio titolare ed è autonoma. Privacy policy | Policy utilizzo | Cookie policy