Trilocale in vendita

Cilavegna, Via Vernazzola
€ 52.000
3 locali 3 locali
110 Mq 110 Mq
1 bagno 1 bagno

Trilocale in vendita

Cilavegna, Via Vernazzola

Descrizione annuncio

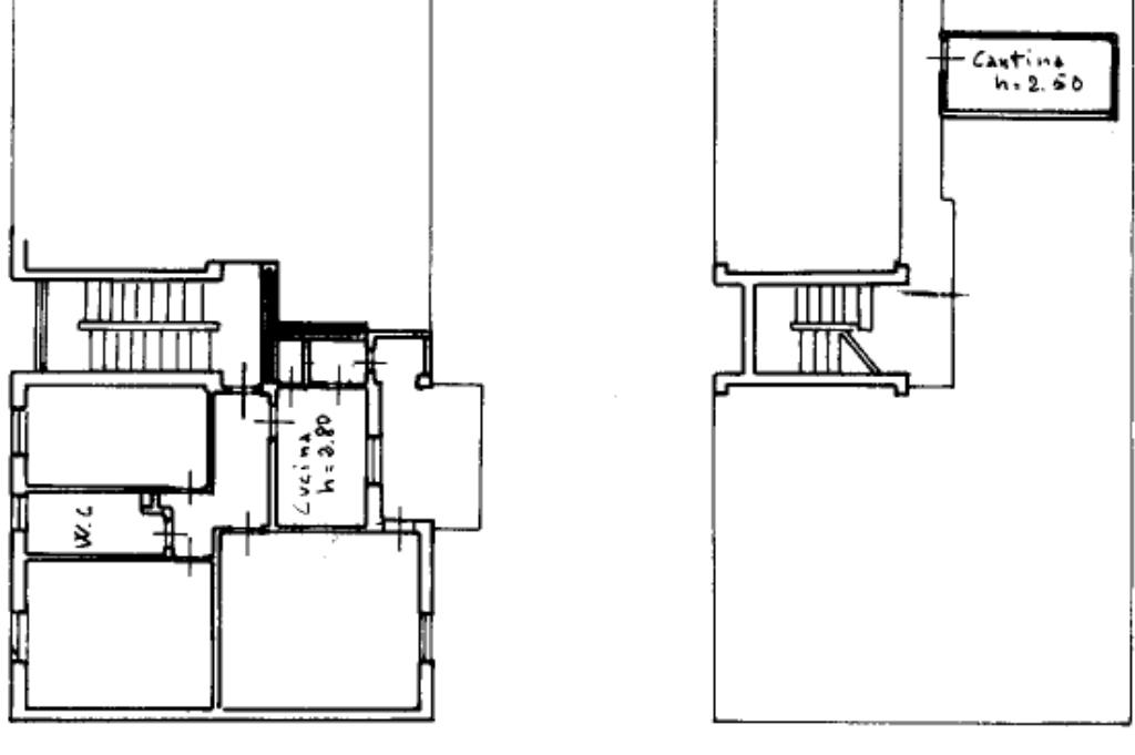
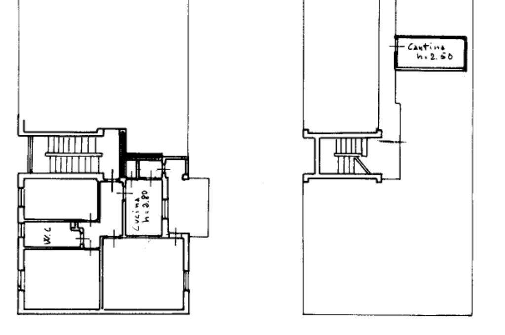
Nel comune di Cilavegna, proponiamo in vendita un trilocale di 100 mq situato al piano secondo. L'appartamento, offre ampi spazi interni che comprendono due camere da letto, un bagno e una cucina abitabile. Il soggiorno si apre su un terrazzo, ideale per momenti di relax all'aperto. La proprietà include un box auto e un posto auto, garantendo comodità e sicurezza per il parcheggio. Le basse spese condominiali rappresentano un ulteriore vantaggio per chi cerca una soluzione abitativa conveniente. Completa l'offerta una cantina, utile per lo stoccaggio di oggetti personali. Questa soluzione abitativa è perfetta per chi desidera vivere in un contesto tranquillo senza rinunciare a spazi generosi e funzionalità.

Mostra tutto

Nelle vicinanze

Trasporto pubblico Trasporto pubblico
Stazione di Albonese
Stazione di Albonese
2,4 Km
Albonese
Albonese
2,4 Km
Ricariche auto elettriche Ricariche auto elettriche
Municipio di Cilavegna | EnelX
560 m
Cilavegna Campi Sportivi | EnelX
710 m
Scuole Scuole
Scuola primaria "Gianni Cordone"
520 m
Scuola secondaria di primo grado "P. Conti"
650 m
Scuola Primaria
2,9 Km
Farmacia Farmacia
Farmacia
560 m
Farmacia
2,6 Km
Supermercati Supermercati
Supermercati
290 m
Mostra tutto

Caratteristiche

Rif.:
61211874
Piano:
2 di 2 (Piano medio)
Box:
1
Posti auto:
1
Terrazzi:
1
Camere da letto:
2
Mostra tutto
Prezzo Prezzo
€ 52.000
Rata mutuo Rata mutuo
€ 246 / mese
Spese annue Spese annue
€ 630
Proponi il tuo prezzoProponi il tuo prezzo

Classe Energetica

Questo immobile è esente da classe energetica
Anno di costruzione:
1965
Riscaldamento:
Autonomo
Tipo impianto:
A radiatori
Tipo alimentazione:
Metano

Ti interessa visionare l'immobile?

Fissa un appuntamento  Fissa un appuntamento

Richiedi informazioni

Clicca su Leggi per aprire l'informativa
* Questi campi sono obbligatori

Calcola il tuo mutuo

Semplice e senza impegno
Anticipo

( % )
Mutuo

( % )

pochi semplici passi

inserisci i tuoi dati
Questionario completato
Grazie per aver richiesto un appuntamento senza impegno con un nostro Consulente del Credito e Assicurativo.

Hai inserito correttamente tutti i dati necessari e a breve riceverai una e-mail con un link da convalidare per inviare i tuoi dati.
Affiliato
Studio Trecate Uno Sas
Via Antonio Gramsci, 21 28069 Trecate (NO)

Il nostro staff


  • Giulia Ibba
    Collaboratrice

  • Ilaria Catinella
    Collaboratrice

  • Iris Palumbo
    Coordinatrice

  • Edoardo Ronza
    Affiliato

  • Flavia Sgotto
    Collaboratrice

  • Ilyass Totss
    Collaboratore
Via Antonio Gramsci, 21 28069 Trecate (NO)
Zona: Trecate-Cerano-Borgolavezzaro-Garbagna Novarese-Vespolate-Sozzago-Terdobbiate-Tornaco-Nibbiola
Mostra su mappa
Affiliato
Studio Trecate Uno Sas
Via Antonio Gramsci, 21 28069 Trecate (NO)

2026 Tecnocasa Franchising S.p.A. - P. IVA 08365160152 - Via Monte Bianco 60/A 20089 Rozzano (MI). Ogni agenzia ha un proprio titolare ed è autonoma. Privacy policy | Policy utilizzo | Cookie policy