Villa singola in vendita

Gravellona Lomellina, Vicolo Andrea Ferraris
€ 239.000
5 locali 5 locali
230 Mq 230 Mq
3 bagni 3 bagni

Villa singola in vendita

Gravellona Lomellina, Vicolo Andrea Ferraris

Descrizione annuncio

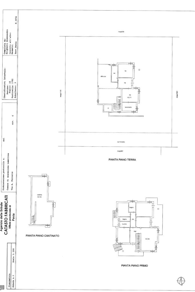
Nel cuore di Gravellona Lomellina, si propone in vendita un'elegante villa singola che si sviluppa su più livelli, offrendo una superficie complessiva di 230 mq. L'immobile, costruito nel 1979, accoglie con un ampio giardino piantumato, ideale per momenti di relax all'aperto. La villa dispone di cinque locali, tra cui tre camere da letto e due bagni, garantendo comfort e funzionalità per tutta la famiglia. Gli spazi interni sono arricchiti da una taverna, perfetta per cene conviviali o come area ricreativa. Un balcone e un terrazzo offrono ulteriori spazi esterni per godere della tranquillità circostante. Completano la proprietà un box auto, che assicura comodità e praticità. L'aria condizionata presente in tutta la casa contribuisce a creare un ambiente accogliente in ogni stagione.

Mostra tutto

Nelle vicinanze

Ricariche auto elettriche Ricariche auto elettriche
Vignarello Barbavara | EnelX
2,6 Km
Municipio di Cilavegna | EnelX
3,0 Km
Scuole Scuole
Scuola primaria "Gianni Cordone"
3,0 Km
Ristoranti Ristoranti
Agriturismo Tenuta Belvedere
1,9 Km
Agriturismo Vignarello - Progetto Agriable
2,6 Km
Mostra tutto

Caratteristiche

Rif.:
61212393
Piano:
3 di 3 (Piano su più livelli)
Box:
1
Posti auto:
3
Balconi:
1
Terrazzi:
1
Mostra tutto
Prezzo Prezzo
€ 239.000
Rata mutuo Rata mutuo
€ 1.133 / mese
Spese annue Spese annue
€ 0
Proponi il tuo prezzoProponi il tuo prezzo

Classe Energetica

F
F
F
F
F
F
F
F
F
EP invernale del fabbricato:
EP estiva del fabbricato:
Anno di costruzione:
1979
Riscaldamento:
Autonomo
Tipo impianto:
A radiatori
Tipo alimentazione:
Metano

Ti interessa visionare l'immobile?

Fissa un appuntamento  Fissa un appuntamento

Richiedi informazioni

Clicca su Leggi per aprire l'informativa
* Questi campi sono obbligatori

Calcola il tuo mutuo

Semplice e senza impegno
Anticipo

( % )
Mutuo

( % )

pochi semplici passi

inserisci i tuoi dati
Questionario completato
Grazie per aver richiesto un appuntamento senza impegno con un nostro Consulente del Credito e Assicurativo.

Hai inserito correttamente tutti i dati necessari e a breve riceverai una e-mail con un link da convalidare per inviare i tuoi dati.
Affiliato
Studio Trecate Uno Sas
Via Antonio Gramsci, 21 28069 Trecate (NO)

Il nostro staff


  • Giulia Ibba
    Collaboratrice

  • Ilaria Catinella
    Collaboratrice

  • Iris Palumbo
    Coordinatrice

  • Edoardo Ronza
    Affiliato

  • Flavia Sgotto
    Collaboratrice

  • Ilyass Totss
    Collaboratore
Via Antonio Gramsci, 21 28069 Trecate (NO)
Zona: Trecate-Cerano-Borgolavezzaro-Garbagna Novarese-Vespolate-Sozzago-Terdobbiate-Tornaco-Nibbiola
Mostra su mappa
Affiliato
Studio Trecate Uno Sas
Via Antonio Gramsci, 21 28069 Trecate (NO)

2026 Tecnocasa Franchising S.p.A. - P. IVA 08365160152 - Via Monte Bianco 60/A 20089 Rozzano (MI). Ogni agenzia ha un proprio titolare ed è autonoma. Privacy policy | Policy utilizzo | Cookie policy