Bilocale in vendita

Robbio, Via Novara
€ 49.000
Prezzo aggiornato
2 locali 2 locali
60 Mq 60 Mq
1 bagno 1 bagno

Bilocale in vendita

Robbio, Via Novara

Descrizione annuncio

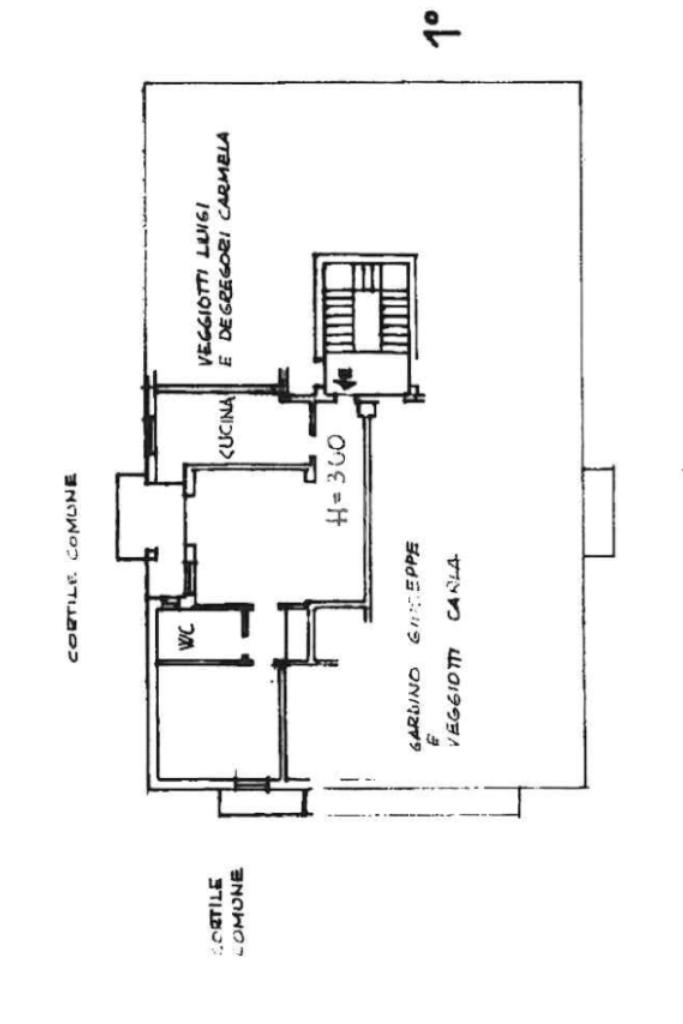
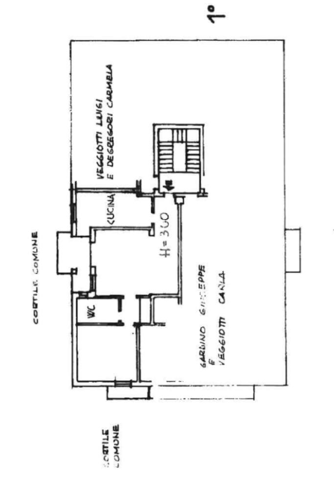
Nel comune di Robbio, proponiamo in vendita un bilocale situato al primo piano rialzato di un edificio costruito nel 1970. L'appartamento, di 60 mq, offre spazi ben distribuiti e funzionali. All'ingresso, si accede a un'accogliente zona giorno, ideale per momenti di relax. La cucina abitabile è perfetta per chi ama cucinare e condividere pasti in compagnia. La camera da letto, luminosa e spaziosa, garantisce un ambiente confortevole per il riposo. Il bagno, pratico e ben organizzato, completa la disposizione interna. L'immobile è dotato di condizionatore. A disposizione dei residenti, un box auto e una cantina, che offrono ulteriore spazio per lo stoccaggio e la comodità di un parcheggio privato. Questa soluzione abitativa rappresenta un'opportunità interessante per chi cerca una casa funzionale e ben collegata nel cuore di Robbio.

Mostra tutto

Nelle vicinanze

Trasporto pubblico Trasporto pubblico
Robbio
Robbio
630 m
Ricariche auto elettriche Ricariche auto elettriche
Robbio Santo Stefano | ENELX
590 m
Robbio Gramsci | EnelX
680 m
Robbio Centro Sportivo | EnelX
1,1 Km
Farmacia Farmacia
Farmacia Gipponi
330 m
Supermercati Supermercati
Famila
1,0 Km
Lidl
1,5 Km
Bar Bar
Mini bar
210 m
Bar Tre Archi
340 m
Mamo's Café
400 m
Ristoranti Ristoranti
Pizzeria Mezzaluna
60 m
Anto e Robi
270 m
Mostra tutto

Caratteristiche

Rif.:
61117283
Piano:
1 di 3 (Piano rialzato)
Box:
1
Posti auto:
1
Balconi:
1
Camere da letto:
1
Mostra tutto
Prezzo Prezzo
€ 49.000
Rata mutuo Rata mutuo
€ 231 / mese
Spese annue Spese annue
€ 1.300
Proponi il tuo prezzoProponi il tuo prezzo

Classe Energetica

G
G
G
G
G
G
G
G
G
EP globale non rinnovabile:
323.97 kW h/m² anno
EP globale rinnovabile:
13.74 kW h/m² anno
EP invernale del fabbricato:
EP estiva del fabbricato:
Anno di costruzione:
1970
Riscaldamento:
Centralizzato
Tipo impianto:
A radiatori
Tipo alimentazione:
Metano

Prezzo ridotto di €1 (11%%)

Ti interessa visionare l'immobile?

Fissa un appuntamento  Fissa un appuntamento

Richiedi informazioni

Clicca su Leggi per aprire l'informativa
* Questi campi sono obbligatori

Calcola il tuo mutuo

Semplice e senza impegno
Anticipo

( % )
Mutuo

( % )

pochi semplici passi

inserisci i tuoi dati
Questionario completato
Grazie per aver richiesto un appuntamento senza impegno con un nostro Consulente del Credito e Assicurativo.

Hai inserito correttamente tutti i dati necessari e a breve riceverai una e-mail con un link da convalidare per inviare i tuoi dati.
Affiliato
Studio Trecate Uno Sas
Via Antonio Gramsci, 38 28069 Trecate (NO)

Il nostro staff


  • Giulia Ibba
    Collaboratrice

  • Iris Palumbo
    Coordinatrice

  • Edoardo Ronza
    Affiliato

  • Flavia Sgotto
    Collaboratrice
Via Antonio Gramsci, 38 28069 Trecate (NO)
Zona: Trecate-Cerano-Borgolavezzaro-Garbagna Novarese-Vespolate-Sozzago-Terdobbiate-Tornaco-Nibbiola
Mostra su mappa
Affiliato
Studio Trecate Uno Sas
Via Antonio Gramsci, 38 28069 Trecate (NO)

2026 Tecnocasa Franchising S.p.A. - P. IVA 08365160152 - Via Monte Bianco 60/A 20089 Rozzano (MI). Ogni agenzia ha un proprio titolare ed è autonoma. Privacy policy | Policy utilizzo | Cookie policy