Porzione di quadrifamiliare in vendita

Tornaco, Via G. Oberdan
€ 45.000
2 locali 2 locali
81 Mq 81 Mq
1 bagno 1 bagno

Porzione di quadrifamiliare in vendita

Tornaco, Via G. Oberdan

Descrizione annuncio

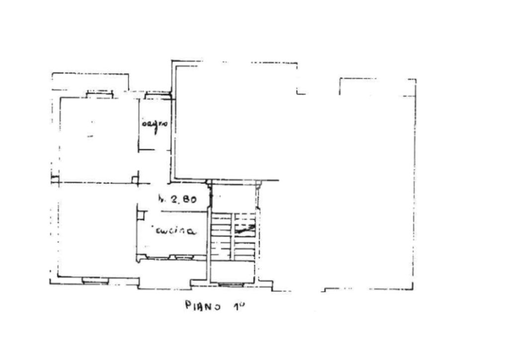
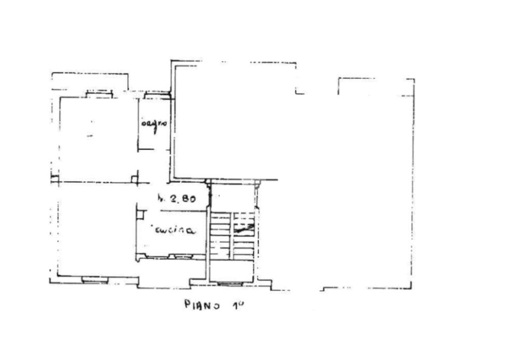
Nel comune di Tornaco, proponiamo in vendita una porzione di quadrifamiliare. L'immobile offre un'accogliente zona giorno composta da un salotto e una cucina semiabitabile con veranda, ideale per chi ama gli spazi luminosi. La camera matrimoniale è dotata di un balcone, mentre il bagno finestrato garantisce comfort e praticità. Completano la proprietà un posto auto e una cantina finestrata, perfetta per chi necessita di ulteriore spazio di archiviazione. Un ripostiglio esterno offre ulteriore comodità. Situata in una zona tranquilla, questa soluzione abitativa è perfetta per chi cerca serenità senza rinunciare alla vicinanza ai servizi.

Mostra tutto

Nelle vicinanze

Trasporto pubblico Trasporto pubblico
Trasporto pubblico
450 m
Ricariche auto elettriche Ricariche auto elettriche
Vignarello Barbavara | EnelX
2,3 Km
Farmacia Farmacia
Farmacia luoni
450 m
Ristoranti Ristoranti
Ristoranti
530 m
Lago dell'Olmo
1,7 Km
Agriturismo Vignarello - Progetto Agriable
2,3 Km
Mostra tutto

Caratteristiche

Rif.:
61165874
Piano:
1 di 2 (Piano basso)
Posti auto:
1
Balconi:
1
Terrazzi:
1
Camere da letto:
1
Mostra tutto
Prezzo Prezzo
€ 45.000
Rata mutuo Rata mutuo
€ 213 / mese
Spese annue Spese annue
€ 50
Proponi il tuo prezzoProponi il tuo prezzo

Classe Energetica

Questo immobile è esente da classe energetica
Anno di costruzione:
1960
Riscaldamento:
Autonomo
Tipo impianto:
A radiatori
Tipo alimentazione:
Metano

Ti interessa visionare l'immobile?

Fissa un appuntamento  Fissa un appuntamento

Richiedi informazioni

Clicca su Leggi per aprire l'informativa
* Questi campi sono obbligatori

Calcola il tuo mutuo

Semplice e senza impegno
Anticipo

( % )
Mutuo

( % )

pochi semplici passi

inserisci i tuoi dati
Questionario completato
Grazie per aver richiesto un appuntamento senza impegno con un nostro Consulente del Credito e Assicurativo.

Hai inserito correttamente tutti i dati necessari e a breve riceverai una e-mail con un link da convalidare per inviare i tuoi dati.
Affiliato
Studio Trecate Uno Sas
Via Antonio Gramsci, 21 28069 Trecate (NO)

Il nostro staff


  • Giulia Ibba
    Collaboratrice

  • Ilaria Catinella
    Collaboratrice

  • Iris Palumbo
    Coordinatrice

  • Edoardo Ronza
    Affiliato

  • Flavia Sgotto
    Collaboratrice

  • Ilyass Totss
    Collaboratore
Via Antonio Gramsci, 21 28069 Trecate (NO)
Zona: Trecate-Cerano-Borgolavezzaro-Garbagna Novarese-Vespolate-Sozzago-Terdobbiate-Tornaco-Nibbiola
Mostra su mappa
Affiliato
Studio Trecate Uno Sas
Via Antonio Gramsci, 21 28069 Trecate (NO)

2026 Tecnocasa Franchising S.p.A. - P. IVA 08365160152 - Via Monte Bianco 60/A 20089 Rozzano (MI). Ogni agenzia ha un proprio titolare ed è autonoma. Privacy policy | Policy utilizzo | Cookie policy